3階 1R 62,000円 19.5m2 築36年 賃貸空室情報|武蔵小杉賃貸・新丸子賃貸/マンション・アパート不動産のベストハウス神奈川賃貸センター

武蔵小杉賃貸マンション 新丸子賃貸マンション 武蔵小杉賃貸アパート 新丸子賃貸アパート 武蔵小杉賃貸一戸建 新丸子賃貸一戸建 

  • 更新

登録・更新日:2026/04/03

 

  • 礼金0
  • 即入居可
武蔵小杉駅前から商店街を歩けば到着♪分譲賃貸マンション♪礼金0円♪現地待ち合わせでご案内致します。
賃料 6万2000円
管理・共益費
0円
敷金 ・ 礼金 1ヶ月  ・  0ヶ月 間取り 1R  北向き
主要アクセス 東急東横線 武蔵小杉駅  から 徒歩3分 専有面積 19.5m 2  ( 5.89坪 )
  • インターネット
  • トイレ・バス別
  • 洗髪洗面台
  • 室内洗濯機置き場
  • 追い焚き
  • フローリング
  • 2階以上
  • オートロック
  • システムキッチン・IH
  • リフォーム済み

[メールで簡単] この物件を問い合わせる

外観図

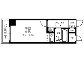
間取り図面

電話番号
044-739-8061
受付時間
午前10時から午後7時まで
問い合せ番号
2_34176

[メールで簡単] この物件を問い合わせる

  •  外観図
  •  その他の写真
  •  その他の写真
  •  その他の写真
  •  その他の写真
  •  その他の写真
  •  その他の写真
  •  その他の写真
  •  その他の写真
  •  その他の写真
  •  その他の写真
  •  その他の写真
  •  その他の写真
  •  その他の写真
  •  その他の写真
  •  その他の写真

担当者からコメント

■礼金0円♪
■人気の武蔵小杉駅へ徒歩3分!
■分譲賃貸マンション♪
■鉄骨鉄筋造のガッチリ感が安心感を与えてくれます♪
■管理人さん日勤物件♪敷地内防犯カメラ設置♪
 オートロックは無いけれど、守られている感があるマンション♪
■ファミリー世帯も混在する建物だとマンション内の秩序が保たれているかも♪
■共用廊下は外から見えない造り♪よくある廊下よりもゆったろしています♪

■お部屋は3階。エレベーター付き♪
 いざという時に階段も使えるちょうどいい高さ!
■19.5㎡の広さがあります♪類似物件よりも洋室が広めに造られています♪
■縦長タイプの洋室♪アクセント壁仕様。
 キッチンと一緒の居室ですが、離れた位置を居住スペースとして使えます♪
■IHクッキングヒーターなのでお手入れ簡単でいつも清潔♪
 下部にミニ冷蔵庫あります。
■室内洗濯機置場♪エアコン付き♪
■バルコニーは北方向です。。
 お向かいのマンションと距離感があるのと商店街の道幅のおかげで室内に採光あります。
■玄関ホールがあって居室が直接見えない間取り♪
 冷暖房の効率向上に役立つのと、洋室までの距離があって、突然の来訪があってもドキドキしません♪

■武蔵小杉駅前から続く商店通り沿い♪いつも人通りがある明るい道のりで帰宅できます♪
 ムサコのタワマン側とは異なる雰囲気♪昔ながらの風情あふれる街並みです♪
 数キロ続く桜並木の遊歩道まで徒歩1分♪春はのんびりお散歩が楽しいですよ!
■JR横須賀線の武蔵小杉駅は徒歩9分。グランツリー武蔵小杉が帰り道にあります♪
■最寄りのコンビニ徒歩1分、イトーヨーカドーは徒歩4分、
 そのほか、駅前施設充実しています!!1人暮らしに快適な住環境♪

■お部屋の見学は現地待ち合わせでご案内致します。
 日時をご予約くださいませ。
電話番号
044-739-8061
受付時間
午前10時から午後7時まで
問い合せ番号
2_34176

[メールで簡単] この物件を問い合わせる

物件詳細情報

基本

アクセス 東急東横線 武蔵小杉駅  から 徒歩3分
東急目黒線 武蔵小杉駅  から 徒歩3分
横須賀線 武蔵小杉駅  から 徒歩9分
種別 アパート・マンション
所在地 神奈川県川崎市中原区市ノ坪 学校区 -

費用

賃料 6万2000円 管理・共益費 0円
礼金 0ヶ月 敷金・保証金 1ヶ月 ・ 0ヶ月
償却・敷引 なし、 - 雑費
家賃保証会社 必加入、 契約時:賃料総額の40%または50%。1年毎:1万円。 保険料 2年契約 20,000円
契約期間 2年 更新料 新賃料の1ヶ月分
鍵交換費用 22,000円

建物

間取り 1R  北向き 専有面積 19.5m 2  ( 5.89坪 )
構造 鉄骨鉄筋コンクリート造 バルコニー面積 -
所在階 / 階数 3階  / 9階建 完成年月 1989年11月 ( 築36年 )
管理 - 総戸数 -
駐車場 - バイク置場 -
駐輪場 敷地内
リフォーム - リノベーション -
設備・条件 礼金なし/即入居可/エレベーター/二階以上/分譲賃貸/室内洗濯機置場/エアコン/CATV/インターネット/監視・防犯カメラ/バルコニー/フローリング
都市ガス・給湯・シャワー・IHクッキングヒーター・室内洗濯機置場・エアコン・バルコニー・シューズボックス・インターネット光・CATV・エレベーター・防犯カメラ・駐輪場(要空車確認)・分譲タイプ・保証会社利用必須

その他

現況 ・ 入居 空室  ・  即時 取引態様 仲介
次回更新日 2026/05/03 QRコード

QRコードから物件情報を見ることが出来ます。読み取りにくい方はこちらからQRコードを拡大できます。

担当者 -

お問い合わせはベストハウス神奈川賃貸センター 本店まで

ベストハウス神奈川賃貸センター 本店
211-0005神奈川県川崎市中原区神奈川県川崎市中原区新丸子町740-2

会社案内

印刷する

お電話・FAXでのお問い合せ
TEL:044-739-8061 FAX:044-744-1290
受付時間
午前10時から午後7時まで

物件の空き状況や、内見希望などお気軽にお問い合わせください

[メールで簡単] この物件を問い合わせる

こちらの物件もあります。

  • 神奈川県川崎市中原区下新城

    12万7000円

    2LDK / 51.01m²

    武蔵中原駅から徒歩 8分

    候補

  • 神奈川県大和市中央林間

    21万円

    3LDK / 69.22m²

    中央林間駅から徒歩 7分

    候補

  • 神奈川県川崎市中原区下小田中

    14万7000円

    3DK / 63.28m²

    武蔵中原駅から徒歩 12分

    候補

  • 神奈川県川崎市中原区上丸子山王町

    11万5000円

    2DK / 38m²

    新丸子駅から徒歩 7分

    候補

  • 神奈川県川崎市中原区丸子通

    16万円

    1LDK / 40.89m²

    新丸子駅から徒歩 6分

    候補

  • 神奈川県川崎市中原区小杉陣屋町

    7万4000円

    1DK / 26m²

    新丸子駅から徒歩 8分

    候補

  • 神奈川県川崎市中原区小杉町

    9万5000円

    1DK / 26.69m²

    新丸子駅から徒歩 6分

    候補

  • 神奈川県川崎市中原区新丸子町

    7万2000円

    1K / 22.3m²

    新丸子駅から徒歩 2分

    候補

  • 神奈川県川崎市中原区新丸子東

    24万9000円

    2LDK / 40.3m²

    新丸子駅から徒歩 4分

    候補

  • 神奈川県川崎市中原区上丸子八幡町

    15万4000円

    1LDK / 41.35m²

    新丸子駅から徒歩 4分

    候補

  • 神奈川県川崎市中原区丸子通

    13万5000円

    1K / 22.56m²

    新丸子駅から徒歩 5分

    候補

  • 神奈川県川崎市中原区小杉御殿町

    12万8000円

    1LDK / 36.07m²

    武蔵小杉駅から徒歩 12分

    候補

  • 神奈川県川崎市中原区小杉町

    17万9000円

    1LDK / 42.14m²

    新丸子駅から徒歩 4分

    候補

  • 神奈川県横浜市戸塚区品濃町

    12万2000円

    1LDK / 57.73m²

    東戸塚駅から徒歩 15分

    候補

  • 神奈川県川崎市中原区上丸子天神町

    13万8000円

    1LDK / 40.17m²

    新丸子駅から徒歩 8分

    候補

最近見た物件 (1)