武蔵小杉賃貸・新丸子賃貸/マンション・アパート不動産のベストハウス神奈川賃貸センター
武蔵小杉賃貸マンション 新丸子賃貸マンション 武蔵小杉賃貸アパート 新丸子賃貸アパート 武蔵小杉賃貸一戸建 新丸子賃貸一戸建
アパート・マンション
一戸建て・テラス
事務所・店舗・他
駐車場
賃貸物件沿線一覧検索
賃貸物件アクセス一覧検索
賃貸物件エリア一覧検索
キャンペーン・ご成約者様特典情報
新丸子 武蔵小杉周辺の賃貸情報
ベストハウス神奈川賃貸センターのfacebook
ベストハウス神奈川賃貸センターのTwitter
お部屋が決まったら
電気・ガス・水道の手続
郵便番号川崎市
新丸子 グルメ情報
新丸子 武蔵小杉の中学校学区
新丸子 武蔵小杉周辺の幼稚園一覧
新丸子 武蔵小杉の小学校学区
新丸子 武蔵小杉周辺の保育園一覧
新丸子周辺の病院
新丸子 武蔵小杉 の電車時刻表
ベストな引越屋さん
川崎市ハザードマップ
ベストハウス神奈川賃貸センター本店
会社案内
ベストハウス 神奈川賃貸センター
神奈川県川崎市 中原区新丸子町 740-2 おかのビル5階
tel.044-739-8061
ニュース&トピックス
2026年
2025年
2024年
2023年
2022年
2021年
2020年
2019年
2018年
2017年
2016年
2015年
2014年
2013年
2012年
2011年
2010年
2009年
2008年
ニューストピックス
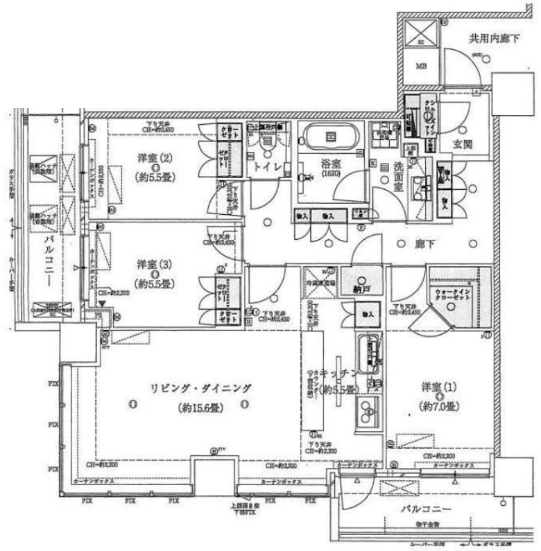
93㎡のタワマン
2015年築の分譲賃貸。
普通契約で更新可能です♪
27階の角住戸♪
全室が窓に向かう明るいお部屋。
LDK21帖は90平米超物件ならではのゆったり感♪
管理費込みで25.5万円なら良い条件だと思います。
武蔵小杉なら30万超え??
http://www.besthousekcc.com/detail_besthousekcc_1_besthousekcc_2_27444
更新日:2021/07/12