武蔵小杉賃貸・新丸子賃貸/マンション・アパート不動産のベストハウス神奈川賃貸センター

武蔵小杉賃貸マンション 新丸子賃貸マンション 武蔵小杉賃貸アパート 新丸子賃貸アパート 武蔵小杉賃貸一戸建 新丸子賃貸一戸建 

営業所案内
ベストハウス 神奈川賃貸センター
神奈川県川崎市 中原区新丸子町 740-2 おかのビル5階
tel.044-739-8061
ニュース&トピックス
ニュース&トピックス

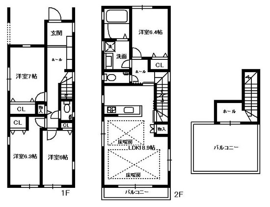
4LDK

一戸建ての賃貸住宅。駐車場付。

更新可能契約です。

階段も専有面積に含まれるので、

一戸建てって思ったよりも広さを感じない事が多いけれど

120㎡超の広さがあれば実感して頂けると思います!

4LDKの4居室全て洋室タイプです。


https://www.besthousekcc.com/detail/besthousekcc/1/besthousekcc/2/30270
更新日:2023/04/14